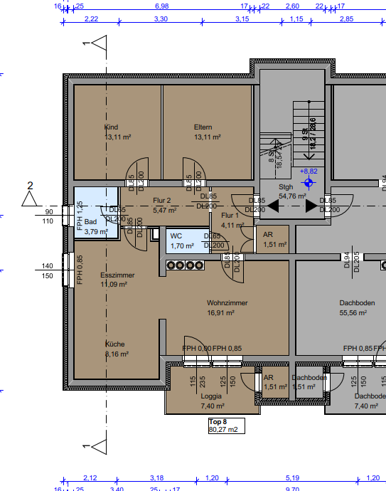
Hohenberg, Schlossergasse 12/8

80.27 m² 687 €

Sehr schöne, geräumige Wohnung im 3. Obergeschoss im Wohnhaus.

 

  • Großes Vorzimmer
  • Wohnküche
  • 2 Zimmer
  • Badezimmer
  • WC

     

Liftzubau erfolgt noch dieses Jahr - bis in den Halbstock (8 verbleibende Stufen zu gehen). Die Wohnung wurde saniert - Vermietung erfolgt ohne Möbel. 
Warmwasseraufbereitung mittels E-Boiler, kein Einzelofen möglich. Wohnzuschuss möglich.

 

Besichtigung nach Terminvereinbarung. 

*) Die angeführten Mietentgelte können sich aufgrund von Neukalkulationen noch ändern.


Miete: € 686,93 (ohne Heizkosten/Strom)
Eigenmittel: 2.143 €
Wohnfläche: 80.27 m²
beziehbar ab: ab 01. Juli 2026
Heizung: Pellets
HWB: 26,68 kWh/m²a
Downloads: Grundriss


Ihr Ansprechpartner für dieses Objekt:

Harald Pachler Herr Ing. Harald Pachler Tel. 050 8882 - 401 E-MAIL

Öffnungszeiten Kundencenter:

DI: 8:00-11:00 Uhr
DO: 14:00-16:00 Uhr